Villa
Fontaine

OPPERVLAK

265m²

SLAAPKAMERS

3

BADKAMERS

2

GARAGE

0

AFMETINGEN

11X15

INHOUD

780m³

STIJL

Klassiek

Een klassieke kapvilla met een eigentijdse verfijning.

Villa Fontaine is een klassieke villa met een duidelijke kapvorm, een krachtige gevelindeling en hoge glaspartijen in de kopgevel. De combinatie van verticale houten gevelbekleding, metselwerkaccenten en een traditionele daklijn zorgt voor een evenwichtig en tijdloos geheel. Binnen het eVilla-concept wordt dit ontwerp volledig technisch voorbereid en prefab gerealiseerd, waardoor u vooraf inzicht krijgt in investering, planning en bouwkwaliteit en de bouwtijd op locatie aanzienlijk wordt verkort.

Woonklaar of Klusklaar | A+++ (BENG-proof) | Bouwtijd 4–6 maanden

WOONKLAAR VANAF

€ 620.338

Volledig afgewerkt, direct bewoonbaar.

KLUSKLAAR VANAF

€ 403.415

Casco, zelf afwerken

Exclusief kavel en palen fundatie

Ontworpen voor kwaliteit en langdurige waarde

Villa Fontaine heeft een woonoppervlakte van 265 m2 en een inhoud van circa 780 m3, verdeeld over een maatvoering van 11 bij 15 meter. De woning wordt gekenmerkt door een steile kap en hoge ramen in de voor- en achtergevel, waardoor veel daglicht diep in de woning doordringt. De duidelijke hoofdvorm en de symmetrische opbouw geven de villa een klassieke uitstraling met een rustige architectonische balans.

De woning wordt gerealiseerd in prefab houtbouw. Constructieve wanden, vloeren en gevelelementen worden onder gecontroleerde omstandigheden geproduceerd en vervolgens op locatie gemonteerd. Dit zorgt voor constante kwaliteit en een beheersbare bouwtijd. De gebouwschil voldoet aan actuele isolatie- en energie-eisen en is geschikt voor een all-electric installatieconcept. Door integrale engineering worden constructie, installaties en detaillering vooraf volledig op elkaar afgestemd.

Fabrieksproductie

Constante kwaliteit

Heldere kosten

Vooraf inzicht

A+++ energielabel

BENG-Proof

Snelle bouwtijd

4 - 6 Maanden

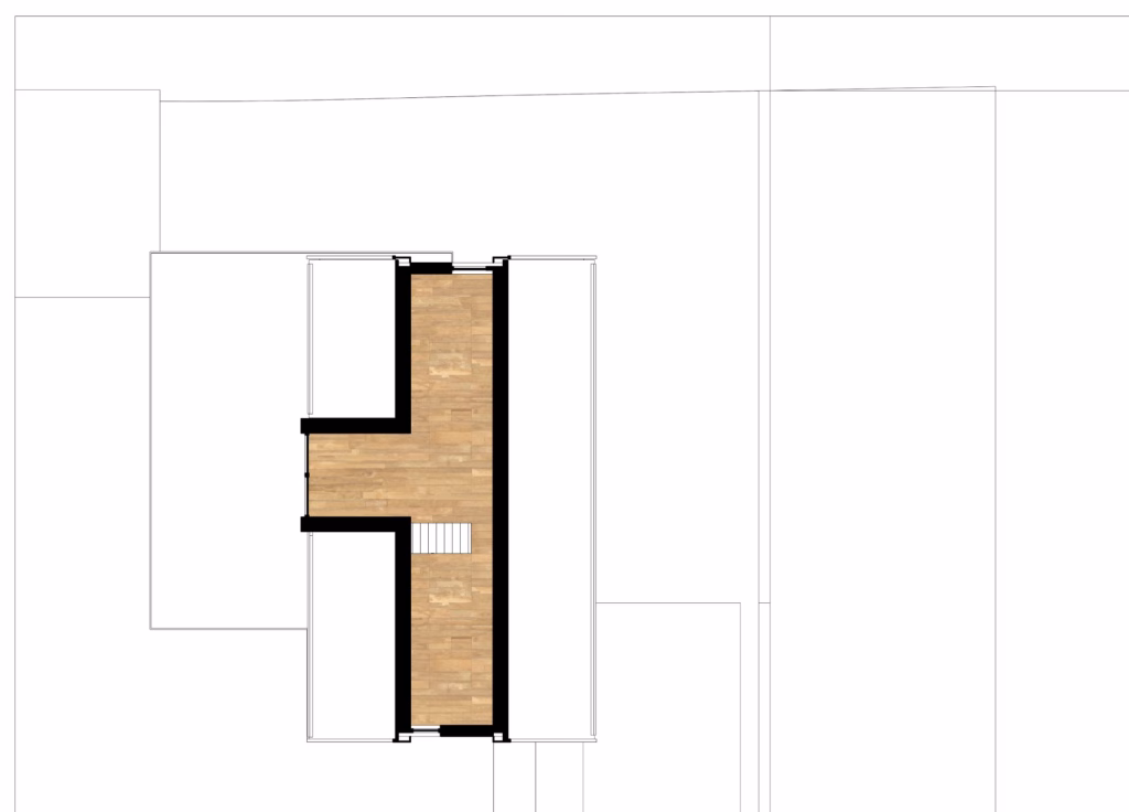
Indeling van de woning

Met een maatvoering van 11 bij 15 meter biedt Villa Fontaine een efficiënte en overzichtelijke indeling over twee lagen. De woning beschikt over 3 slaapkamers en 2 badkamers. De hoge kapconstructie maakt een ruimtelijk effect mogelijk op de verdieping, terwijl de brede begane grond een open leefruimte creëert met directe verbinding naar tuin en terras.

Binnen het prefab systeem kunnen indelingsaanpassingen worden doorgevoerd, zodat de woning afgestemd kan worden op specifieke woonwensen, zonder de technische uitgangspunten van het bouwsysteem te verlaten.

Specifieke vraag over de indeling?

Begane grond
Boven verdieping
Zolder

Van ontwerp naar prefab realisatie een volledig beheerst proces

Prefab geeft grip op planning, kwaliteit en kosten zonder concessies aan ontwerpvrijheid.

Prefab villa aan het water

Kies en optimaliseer dit model

U vertrekt vanuit Villa Fontaine en past het ontwerp aan op uw woonwensen, kavel en budget. Het model vormt het uitgangspunt, met ruimte voor gerichte optimalisatie binnen het prefab systeem.

  • De plattegrond aanpassen

  • Gevelindeling wijzigen

  • Volume uitbreiden of verfijnen
  • Installaties personaliseren
  • Materialisering aanpassen

Alle aanpassingen worden technisch doorgerekend en vertaald naar prefab elementen. Hierdoor blijft de bouwtijd beheersbaar en de kwaliteit consistent. U krijgt maatwerk binnen een gecontroleerd bouwsysteem.

Lever uw eigen ontwerp aan

Heeft u al een architectenontwerp of een eigen schets? Dan nemen wij dit als uitgangspunt en vertalen het naar een prefab bouwmethode.

Dat proces verloopt gestructureerd:

  • Analyse van het ontwerp op maakbaarheid en efficiëntie

  • Technische optimalisatie zonder verlies van architectonische intentie

  • Uitwerking in elementengineering

  • Prefab productie in gecontroleerde fabrieksomgeving

  • Realisatie op locatie volgens vaste planning

Zo combineren we ontwerpvrijheid met prefab zekerheid. Het resultaat is geen standaard cataloguswoning, maar een technisch geoptimaliseerde villa die past bij uw visie en binnen een voorspelbaar bouwproces wordt gerealiseerd.

Transparant van eerste schets tot oplevering.

VEELGESTELDE VRAGEN

Heeft u vragen?

Staat uw vraag er niet tussen, neem dan contact met ons op

De prijs in het gekozen pakket omvat: prefab bouwdelen, transport naar jouw locatie, montage van de constructie, installatie basis elektra & sanitair (voor woonklaar), en afwerking binnen het gekozen pakketniveau.
Wat niet standaard is inbegrepen: volledig maatwerk boven standaard opties (bijkomende dakkapellen, carports), extra luxe keuken & sanitair buiten de pakketstandaard, funderingsadvies of extreme situatiespecifieke ondergrondaanpassingen (afhankelijk van kavel). De pakkettenpagina biedt een overzicht van wat elk pakket precies dekt.

De gepubliceerde prijzen zijn vanaf-prijzen die gelden voor het standaard model binnen de vermelde afwerkingspakketten. Werkelijk definitieve prijzen worden vastgesteld na kavelcheck, ontwerpkeuzes en pakketselectie. Prijsdrivers zijn afwerkingsniveau, opties, kavelcondities en eventuele technische uitbreidingen.

KlusKlaar

De woning wordt prefab geproduceerd en wind- en waterdicht gemonteerd.
De constructie, buitengevels, dak, kozijnen en basisinstallaties zijn aanwezig.
De binnenafwerking zoals vloeren, wandafwerking, keuken en sanitair verzorgt u zelf of via een externe partij.

Voor wie geschikt?
Voor opdrachtgevers die zelf invloed willen houden op afwerking, kosten willen optimaliseren of eigen leveranciers willen inzetten.

WoonKlaar

De woning wordt volledig afgewerkt en is direct gereed voor bewoning.
Dit omvat onder andere installaties, sanitair, keuken, wand- en vloerafwerking conform de gekozen standaard binnen het pakket.

Voor wie geschikt?
Voor opdrachtgevers die maximale ontzorging willen en een voorspelbaar, compleet traject wensen.

eVilla richt op een 14-weken bouwtijd van montage tot oplevering voor de prefab constructie zelf. Het volledige traject (kavelcheck, schets en vergunning tot oplevering) duurt meestal langer: schets & vergunning verwerken kan 6–12 weken nemen, daarna productie en montage.

De vergunningfase wordt door eVilla begeleid, maar de duur ligt bij de gemeente. Eventuele vertragingen in de vergunningfase beïnvloeden de totale planning, maar de bouwplanning zelf start pas als vergunningen rond zijn, zodat je bouwproces niet versneld door risico’s op juridische wijzigingen.

De vergunningfase wordt door eVilla begeleid, maar de duur ligt bij de gemeente. Eventuele vertragingen in de vergunningfase beïnvloeden de totale planning, maar de bouwplanning zelf start pas als vergunningen rond zijn, zodat je bouwproces niet versneld door risico’s op juridische wijzigingen.

KLAAR OM TE BEGINNEN?

Interesse in
villa Fontaine?

Plan een vrijblijvend gesprek met onze adviseurs en krijg binnen 24 uur een persoonlijke offerte op maat.

250+

Villa's gebouwd

18

Weken bouwtijd

100%

Prijsgarantie

Prefab villa aan het water

Compare Listings