Villa
Elementa

OPPERVLAK

222m²

SLAAPKAMERS

3

BADKAMERS

3

GARAGE

1

AFMETINGEN

18X15

INHOUD

685m³

STIJL

Modern

Een moderne villa met de zekerheid van prefab bouwen.

Villa Elementa is een eigentijdse villa met horizontale volumes, een verschoven bovenverdieping en grote glaspartijen die zorgen voor veel daglicht. Binnen het eVilla-concept wordt dit ontwerp volledig technisch voorbereid en prefab gerealiseerd, waardoor u vooraf inzicht krijgt in investering, planning en bouwkwaliteit en de bouwtijd op locatie aanzienlijk wordt verkort.

Woonklaar of Klusklaar | A+++ (BENG-proof) | Bouwtijd 4–6 maanden

WOONKLAAR VANAF

€ 611.655

Volledig afgewerkt, direct bewoonbaar.

KLUSKLAAR VANAF

€ 381.268

Casco, zelf afwerken

Exclusief kavel en palen fundatie

Ontworpen voor kwaliteit en langdurige waarde

Villa Elementa heeft een gebruiksoppervlakte van 222 m² en een inhoud van circa 685 m³. Met een lengte van 18 meter en een breedte van 15 meter biedt de woning een ruime footprint die geschikt is voor royale kavels. De geïntegreerde garage is onderdeel van het hoofdvolume en versterkt de strakke, horizontale opzet van het ontwerp.

De woning wordt gerealiseerd in een prefab houtbouwconstructie met hoogwaardige isolatie en luchtdichte detaillering. Gevels en dak voldoen ruimschoots aan de actuele energie-eisen. De woning is voorbereid op een volledig all-electric installatieconcept met warmtepomp en gebalanceerde ventilatie met warmteterugwinning.

Alle bouwkundige en installatietechnische onderdelen worden vooraf integraal uitgewerkt. Daardoor sluiten constructie, aansluitingen en afbouw exact op elkaar aan. Dit resulteert in een consistente bouwkwaliteit en een woning die voldoet aan de huidige eisen op het gebied van energieprestatie en comfort.

Fabrieksproductie

Constante kwaliteit

Heldere kosten

Vooraf inzicht

A+++ energielabel

BENG-Proof

Snelle bouwtijd

4 - 6 Maanden

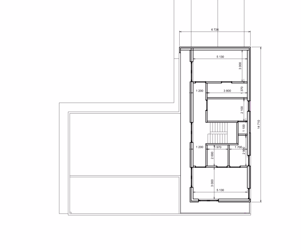
Indeling van de woning

De plattegrond van Villa Elementa is opgezet vanuit ruimtelijkheid en overzicht. De brede maatvoering van 15 meter maakt royale leefzones mogelijk, terwijl de verdieping volledig wordt benut binnen het bovenliggende volume. Met 3 slaapkamers en 3 badkamers biedt de woning een comfortabele indeling die geschikt is voor gezinnen en voor opdrachtgevers die extra ruimte wensen voor gasten of werk aan huis.

Binnen het prefab systeem kunnen indelingsaanpassingen zorgvuldig worden doorgevoerd, zonder dat dit ten koste gaat van de technische samenhang van het ontwerp.

Specifieke vraag over de indeling?

Begane grond
Boven verdieping

Van ontwerp naar prefab realisatie een volledig beheerst proces

Prefab geeft grip op planning, kwaliteit en kosten zonder concessies aan ontwerpvrijheid.

Prefab villa elementa

Kies en optimaliseer dit model

U vertrekt vanuit Villa Elementa en past het ontwerp aan op uw woonwensen, kavel en budget. Het model vormt het uitgangspunt, maar biedt ruimte voor gerichte optimalisatie binnen het prefab systeem.

U kunt onder andere:

  • De plattegrond aanpassen aan uw gezinssituatie

  • De positie en maatvoering van glaspartijen wijzigen

  • Het volume uitbreiden of verkleinen binnen de constructieve kaders

  • Installaties personaliseren, zoals warmtepomp, ventilatie of technische indeling

  • Gevelafwerking en materiaalkeuzes verfijnen

Alle aanpassingen worden technisch doorgerekend en vertaald naar prefab elementen. Hierdoor blijft de bouwtijd beheersbaar en de kwaliteit consistent. U krijgt maatwerk binnen een gecontroleerd en vooraf uitgewerkt bouwsysteem.

Lever uw eigen ontwerp aan

Heeft u al een architectenontwerp of een eigen schets? Dan nemen wij dit als uitgangspunt en vertalen het naar een prefab bouwmethode.

Dat proces verloopt gestructureerd:

  • Analyse van het ontwerp op maakbaarheid en efficiëntie

  • Technische optimalisatie zonder verlies van architectonische intentie

  • Uitwerking in elementengineering

  • Prefab productie in gecontroleerde fabrieksomgeving

  • Realisatie op locatie volgens vaste planning

Zo combineren we ontwerpvrijheid met prefab zekerheid. Het resultaat is geen standaard cataloguswoning, maar een technisch geoptimaliseerde villa die past bij uw visie en binnen een voorspelbaar bouwproces wordt gerealiseerd.

Transparant van eerste schets tot oplevering.

VEELGESTELDE VRAGEN

Heeft u vragen?

Staat uw vraag er niet tussen, neem dan contact met ons op

De prijs in het gekozen pakket omvat: prefab bouwdelen, transport naar jouw locatie, montage van de constructie, installatie basis elektra & sanitair (voor woonklaar), en afwerking binnen het gekozen pakketniveau.
Wat niet standaard is inbegrepen: volledig maatwerk boven standaard opties (bijkomende dakkapellen, carports), extra luxe keuken & sanitair buiten de pakketstandaard, funderingsadvies of extreme situatiespecifieke ondergrondaanpassingen (afhankelijk van kavel). De pakkettenpagina biedt een overzicht van wat elk pakket precies dekt.

De gepubliceerde prijzen zijn vanaf-prijzen die gelden voor het standaard model binnen de vermelde afwerkingspakketten. Werkelijk definitieve prijzen worden vastgesteld na kavelcheck, ontwerpkeuzes en pakketselectie. Prijsdrivers zijn afwerkingsniveau, opties, kavelcondities en eventuele technische uitbreidingen.

KlusKlaar

De woning wordt prefab geproduceerd en wind- en waterdicht gemonteerd.
De constructie, buitengevels, dak, kozijnen en basisinstallaties zijn aanwezig.
De binnenafwerking zoals vloeren, wandafwerking, keuken en sanitair verzorgt u zelf of via een externe partij.

Voor wie geschikt?
Voor opdrachtgevers die zelf invloed willen houden op afwerking, kosten willen optimaliseren of eigen leveranciers willen inzetten.

WoonKlaar

De woning wordt volledig afgewerkt en is direct gereed voor bewoning.
Dit omvat onder andere installaties, sanitair, keuken, wand- en vloerafwerking conform de gekozen standaard binnen het pakket.

Voor wie geschikt?
Voor opdrachtgevers die maximale ontzorging willen en een voorspelbaar, compleet traject wensen.

eVilla richt op een 14-weken bouwtijd van montage tot oplevering voor de prefab constructie zelf. Het volledige traject (kavelcheck, schets en vergunning tot oplevering) duurt meestal langer: schets & vergunning verwerken kan 6–12 weken nemen, daarna productie en montage.

De vergunningfase wordt door eVilla begeleid, maar de duur ligt bij de gemeente. Eventuele vertragingen in de vergunningfase beïnvloeden de totale planning, maar de bouwplanning zelf start pas als vergunningen rond zijn, zodat je bouwproces niet versneld door risico’s op juridische wijzigingen.

De vergunningfase wordt door eVilla begeleid, maar de duur ligt bij de gemeente. Eventuele vertragingen in de vergunningfase beïnvloeden de totale planning, maar de bouwplanning zelf start pas als vergunningen rond zijn, zodat je bouwproces niet versneld door risico’s op juridische wijzigingen.

KLAAR OM TE BEGINNEN?

Interesse in
villa Elementa?

Plan een vrijblijvend gesprek met onze adviseurs en krijg binnen 24 uur een persoonlijke offerte op maat.

250+

Villa's gebouwd

18

Weken bouwtijd

100%

Prijsgarantie

Prefab villa elementa
Villa elementa zij aanzicht

Compare Listings